名古屋市港区に新たな賑わいの予感!「名古屋ちゃやまちモール」が拓く、地域密着型ショッピングの新時代
名古屋の皆さんに朗報です!愛知県名古屋市港区の茶屋新田地区に、待望の複合商業施設 「名古屋ちゃやまちモール」 が、2026年1月29日(木) にグランドオープンします。このニュースを聞いて、私も思わず「ついに来たか!」と胸が高鳴りました。地域の皆さんの生活が、また一段と便利で豊かになること間違いなしの予感です。
地域の「欲しい」を凝縮!「名古屋ちゃやまちモール」の魅力とは?
この「名古屋ちゃやまちモール」は、ただのショッピングモールではありません。敷地面積8,432.55m2(約2,550坪)という広大な土地に、地域密着型というコンセプトを徹底的に追求した、まさに「街の冷蔵庫」であり「生活のハブ」となる施設なのです。
私が特に注目したのは、その立地とコンセプト。市南西部の新たな拠点として発展を続ける茶屋新田区画整理地内に位置し、「自然と触れ合える良好な居住環境の形成」という地域の理念を継承し、敷地内や屋上にも積極的に緑化を取り入れるという点です。買い物ついでにホッと一息つけるような、心地よい空間が広がることを期待してしまいますね。
施設外観のイメージ

地域の食卓と健康を支える、頼れる2大テナント
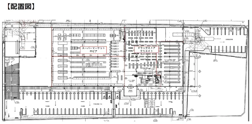
「毎日利用できる施設」として、核となるテナントは以下の2店舗が発表されています。
| No. | 店舗名 | 業種 | 延床面積(店舗床面積) | オープン日 |
|---|---|---|---|---|
| 1 | 食生活♡♡ロピア | スーパーマーケット | 2,665.68m2 (806.36坪) | 2026年1月29日 |
| 2 | クリエイトSD | ドラッグストア | 1,236.02m2 (373.89坪) | 2026年1月29日 |
「名古屋ちゃやまちモール」の配置図

皆さんご存知の「ロピア」は、そのユニークなネーミング「食生活♡♡」が示す通り、お客様の食生活への情熱が感じられますよね。新鮮で高品質な商品を、お手頃価格で提供することで知られており、まさに日々の家計に優しい「コスパ最強」スーパーの代表格。そして「クリエイトSD」は、医薬品から日用品まで幅広く揃い、地域の健康と美容をサポートしてくれることでしょう。
周辺には、東京インテリア家具、イオンモール名古屋茶屋、スーパーセンタートライアルなど、すでに様々な大型商業施設が展開しています。そこに「名古屋ちゃやまちモール」が加わることで、さらに大きなシナジー効果が生まれ、このエリア全体の魅力がぐっと高まるのではないでしょうか。
車でのアクセス抜群!快適なショッピング環境
「名古屋ちゃやまちモール」は、車社会である愛知県のニーズをしっかり捉えています。 名古屋第二環状自動車道「南陽」ICからはなんと約650mという好アクセス!これは車での来店を強く意識した設計ですね。駐車場もたっぷり191台分用意されているほか、隣接する東京インテリア家具 名古屋本店様との共同駐車場も96台利用可能。合計287台もの駐車スペースがあれば、週末の混雑時でも安心してお買い物に専念できそうです。
「名古屋ちゃやまちモール」周辺の広域地図

「名古屋ちゃやまちモール」周辺の詳細地図

公共交通機関をご利用の場合、名古屋臨海高速鉄道あおなみ線「荒子川公園」駅からは約4,700mと少し距離がありますが、地域密着型施設として、まずは自動車での利便性を最優先した形と言えるでしょう。
この魅力的な施設を仕掛けたのは「新昭和」グループ!
今回の「名古屋ちゃやまちモール」を手掛けるのは、株式会社 新昭和です。皆さんは「新昭和」という名前を聞いたことがありますか?
新昭和グループのロゴ

新昭和グループは、「一人ひとりが、輝く明日を。」をコミュニケーションワードに掲げ、多様な事業を展開している企業グループです。その歴史は古く、ツーバイフォー工法が日本で認可された翌年にいち早く販売をスタートしたという、まさに日本の住宅業界のパイオニアとも言える存在です。
2017年にホールディングス体制へ移行してからは、住宅事業だけでなく、環境、教育、健康といった、私たちの暮らしに密接に関わる様々な分野へと事業を拡大。「街づくり」を多角的に捉え、より豊かで充実した暮らしを提供することを目指しています。
新昭和グループの企業とブランド

近年、不動産に関するニーズが「所有」から「運用」へと大きく変化している中で、新昭和グループは「不動産アセット事業」にも力を入れています。これは、地域ネットワークとテナント企業との密な連携を通じて、街の魅力を高める施設を「創出」していく取り組みです。「名古屋ちゃやまちモール」も、まさにこの創出型アセット事業の成功事例となるでしょう。
新昭和グループの施工実績

さらに、新昭和グループはSDGs(持続可能な開発目標) にも積極的に参画しており、持続可能でより良い世界を目指す国際目標の達成へ向けた行動を推進しています。地域環境への配慮が見られる「名古屋ちゃやまちモール」の緑化計画も、この取り組みの一環と言えるでしょう。
新昭和グループのSDGsへの取り組み

新昭和グループの取り組みについて、もっと詳しく知りたい方は、ぜひ公式サイトをチェックしてみてください。 新昭和 公式サイトURL:https://www.shinshowa.co.jp/
まとめ:地域の未来を彩る新しいランドマーク
2026年1月29日のグランドオープンが今から楽しみでなりません。「名古屋ちゃやまちモール」は、ただ買い物をするだけの場所ではなく、地域の皆さんの生活に密着し、豊かな暮らしをサポートする新しいランドマークとなることでしょう。
ロピアでのお得な買い物、クリエイトSDでの健康管理、そして緑豊かな空間でのリフレッシュ。ぜひご家族やご友人と一緒に、足を運んでその魅力を肌で感じてみてください。名古屋市港区茶屋新田が、この新しい施設によってさらに活気に満ちた街になることを期待しています!












