奈良の旅がもっと豊かに!貸切一軒家「Cocon Nara Sanjyo」で過ごす特別な時間
2025年12月6日、古都奈良の三条エリアに、旅の概念を覆す新しい宿泊施設が誕生します。その名も 「Cocon Nara Sanjyo(ここん ならさんじょう)」 。JR奈良駅からわずか徒歩7分という抜群のロケーションに位置しながら、最大12名まで宿泊できる贅沢な一棟貸しスタイル。グループ旅行や三世代家族での旅行を計画中の方にとって、まさに理想的な選択肢となるでしょう。
私がこの施設に注目したのは、ただの宿泊場所ではない、「旅の物語」を紡ぐ空間としての魅力が詰まっていると感じたからです。一体どのような体験が待っているのでしょうか?その全貌を深掘りしていきましょう。
奈良の中心で歴史とモダンが融合する「Cocon Nara Sanjyo」の全貌
まず、その佇まいからして目を引きます。黒を基調としたモダンな外観は、古き良き奈良の街並みに溶け込みながらも、確かな存在感を放っています。

1. 抜群の立地が叶える最高の奈良体験
「Cocon Nara Sanjyo」が位置するのは、奈良市の中心地、三条エリア。JR奈良駅から徒歩7分というアクセスの良さは、荷物が多い旅行者にとって大きな魅力です。さらに、奈良公園、東大寺、興福寺といった主要な観光スポットへも徒歩圏内。朝早く起きて誰もいないお寺を散策したり、夕暮れの奈良公園で鹿と触れ合ったりと、時間を気にせず観光を満喫できます。
三条通りには趣のある町並みが続き、カフェや雑貨店、地元グルメの飲食店も点在しています。観光の合間にふらりと立ち寄って、奈良ならではの「日常」に触れるのも良いでしょう。
2. 大人数でも快適!一棟貸しの贅沢空間
3階建ての一棟貸しスタイルは、プライベート感を重視したいグループにとって最適です。最大12名まで宿泊可能という広々とした間取りは、家族旅行はもちろん、友人同士のグループ旅行や会社の研修旅行など、様々なシーンで活躍しそうです。
リビングダイニングは、みんなで食卓を囲んだり、旅の思い出を語り合ったりするのにぴったりのゆとりある空間。各階に寝室が配置されているため、大人数でもそれぞれのプライベートがしっかり確保できるのも嬉しいポイントです。

3. 奈良の夜を愉しむ、特別なバスタイム
旅の疲れを癒すバスタイムも、「Cocon Nara Sanjyo」では一味違います。リビング横に設けられたバスエリアには、半円状のデザインが特徴的な埋め込み型バスタブが。このゆったりとしたバスタブは、心身ともにリラックスさせてくれることでしょう。しかも、グループ滞在を考慮し、シャワーは2台設置されています。これは大人数での旅行で特にありがたい配慮ですよね。

夜になると、ガラス越しに見える木々がライトアップされ、バスルームは幻想的な空間へと変貌します。湯船に浸かりながら眺めるこの特別な夜景は、旅の思い出に深く刻まれること間違いなしです。

4. 機能性とデザインが融合した洗面スペース
1階には、ガラス張りの開放感あふれる洗面スペースが広がります。ダブルボウルの洗面台は、朝の忙しい時間帯でもグループやファミリーがスムーズに支度できるよう配慮されています。足元にはタイルや石材といった自然素材が組み合わされ、空間に温かみと上質さを加えています。

夜には足元に仕込まれたライトが優しく灯り、昼間とは異なる幻想的なムードを演出。洗面台背面のガラス越しに見えるライトアップされた木々が、ここでも非日常感を高めてくれます。細部にまでこだわり抜かれたデザインは、日常の洗面時間すら特別なものに変えてくれるでしょう。

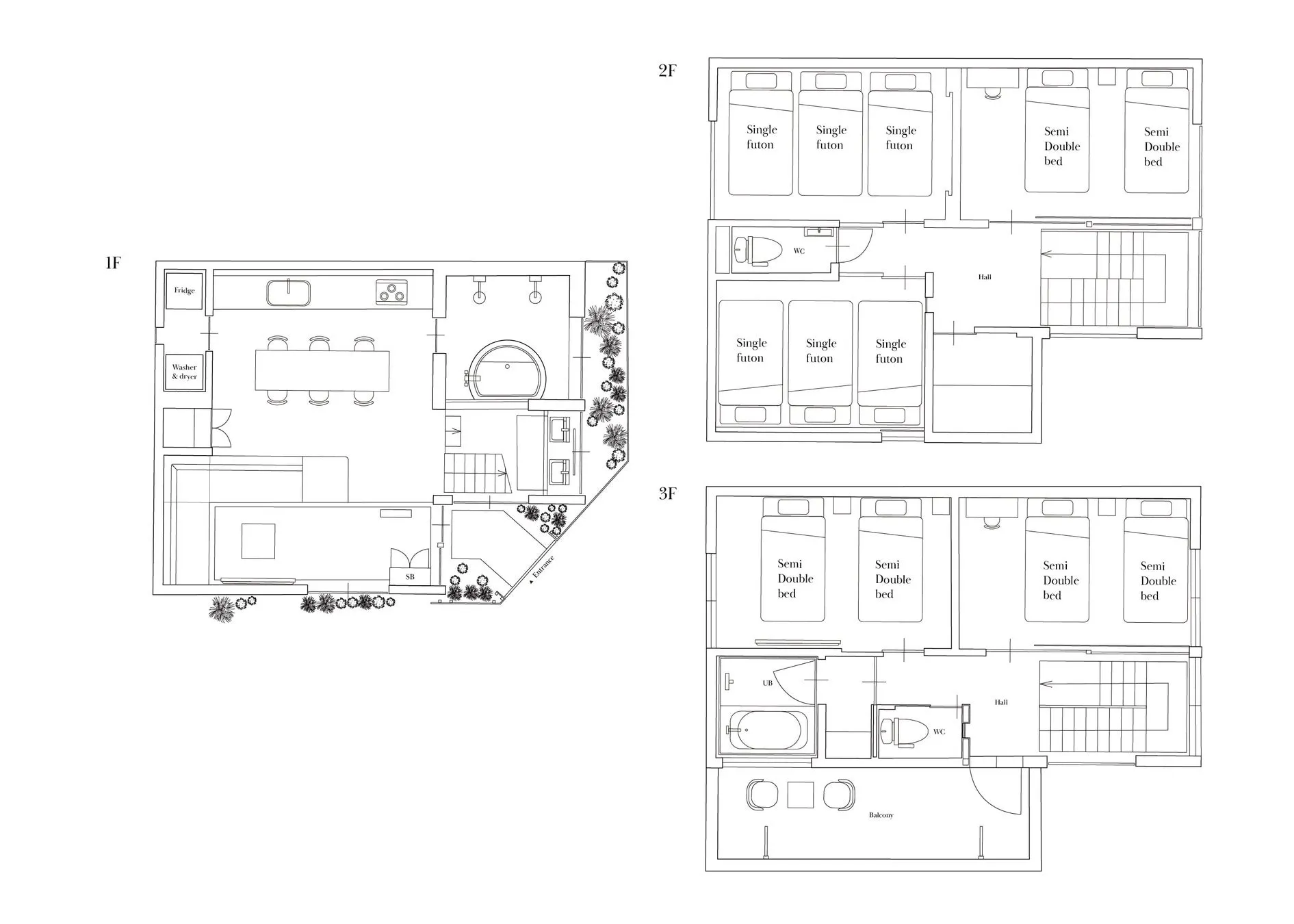
5. 多様なニーズに応える快適な寝室
「Cocon Nara Sanjyo」の寝室は、旅のメンバーの多様なニーズに応えるように設計されています。
- 洋室3部屋: それぞれにセミダブルベッドが2台ずつ配置されており、ゆったりと質の高い睡眠をサポートします。
- 和室: シングル布団が3組ずつ用意されており、畳の上で足を伸ばしてくつろぎたい方や、小さなお子様連れのファミリーにも安心です。

和室と洋室の組み合わせは、まさに大人数での滞在に柔軟性をもたらします。温かみのある照明と落ち着いたインテリアが、旅の疲れをそっとほぐし、心からくつろげるひとときを演出してくれることでしょう。
間取り図からも、各フロアにゆとりが感じられますね。

「eni.」が描く新しい旅のカタチ
「Cocon Nara Sanjyo」は、eni.(エニ) というブランドが手掛ける施設の一つです。eni.のコンセプトは、その名の通り、旅する人の「物語」を大切にするもの。

- extraordinary(非日常)
- narrative(物語)
- identity(自分であること)
- . (周りを旅すること)
eni.は、単なる宿泊施設ではなく、「人生を少しだけステイしませんか?」と問いかけ、日常から離れて本来の自分を取り戻せるような空間づくりを目指しています。こだわり抜かれた世界観とインテリアは、あなたの旅を一層特別なものにしてくれるはず。Instagramでもその美しい世界観を垣間見ることができますよ。
《eni.公式HP》https://go2eni.com/prtimes_eni 《Instagram》https://go2eni.com/prtimes_eniinst
「人生に綴られるひとときをつくる」LDKプロジェクトの哲学
「Cocon Nara Sanjyo」を運営するのは、大阪を中心に民泊施設を手掛ける株式会社LDKプロジェクトです。彼らの企業哲学は「人生に綴られるひとときをつくる」。宿泊とは、お客様の時間をお預かりし、快適で価値ある空間とサービスを提供することである、と考えています。

設備やサービス、インテリア、そして清掃に至るまで、一切手を抜かず心を込める。それによって、訪れた人の「人生」という物語の1ページになるような、思い出に残る時間と体験を提供する。この理念が、Cocon Nara Sanjyoの隅々にまで息づいていることが、記事を書きながらひしひしと伝わってきました。
また、LDKプロジェクトは民泊運営のプロフェッショナルとして、遊休不動産の活用を考えている方へのサポートも行っています。もし「空いている部屋があるけれど、どう活用したらいいか分からない」「民泊に興味はあるけど、知識がなくて不安」といったお悩みをお持ちなら、ぜひ一度相談してみてはいかがでしょうか。長年の経験を持つ彼らが、丁寧にアドバイスをくれるはずです。
《株式会社LDKプロジェクト 公式HP》https://ldk-pjt.com/prs_ldk_hp 《民泊代行ページ》https://ldk-pjt.com/ldk_daiko
「Cocon Nara Sanjyo」宿泊情報&コストパフォーマンス
それでは、気になる宿泊情報と、そのコストパフォーマンスについて見ていきましょう。
| 項目 | 内容 |
|---|---|
| 施設名 | Cocon Nara Sanjyo (ここん なら さんじょう) |
| 住所 | 〒630-8244 奈良市三条町593番48 |
| アクセス | JR「奈良」駅から徒歩7分 |
| オープン日 | 2025年12月6日(金) |
| 料金プラン | 25,000円~ |
| 公式予約 | https://go2eni.com/stay/cocon-narasanjyo/ |
注目すべきは、 「料金プラン:25,000円~」 という価格設定です。最大12名まで宿泊可能ということを考えると、例えば12名で宿泊した場合、**1人あたり約2,083円~**という驚きの価格になります。この価格で、広々とした一棟貸しの空間、こだわりのバスルームや洗面スペース、そして多様なニーズに対応する寝室を利用できることを考えると、そのコストパフォーマンスは非常に高いと言えるでしょう。
特にホテルでは味わえないプライベート感や、全員でリビングに集まって団らんできる時間は、大人数での旅行でしか得られない特別な価値です。
まとめ:奈良での滞在を「物語」に変える場所
歴史と文化が息づく奈良という土地で、「Cocon Nara Sanjyo」は、単なる旅の拠点にとどまらず、滞在そのものを特別な時間へと昇華させる場所です。観光名所への圧倒的な利便性に加え、随所に光るデザイン性と機能性を兼ね備えた空間は、きっと訪れる人々に新たな滞在体験をもたらしてくれるはず。
大切な家族や友人と、奈良の魅力を深く感じながら、心に残る「物語」の1ページを紡いでみませんか?
Cocon Nara Sanjyoは、あなたの奈良での旅を、きっと忘れられないものにしてくれるはずです。












